405 720 8910
405-990-3793
Email Me About Your New Home
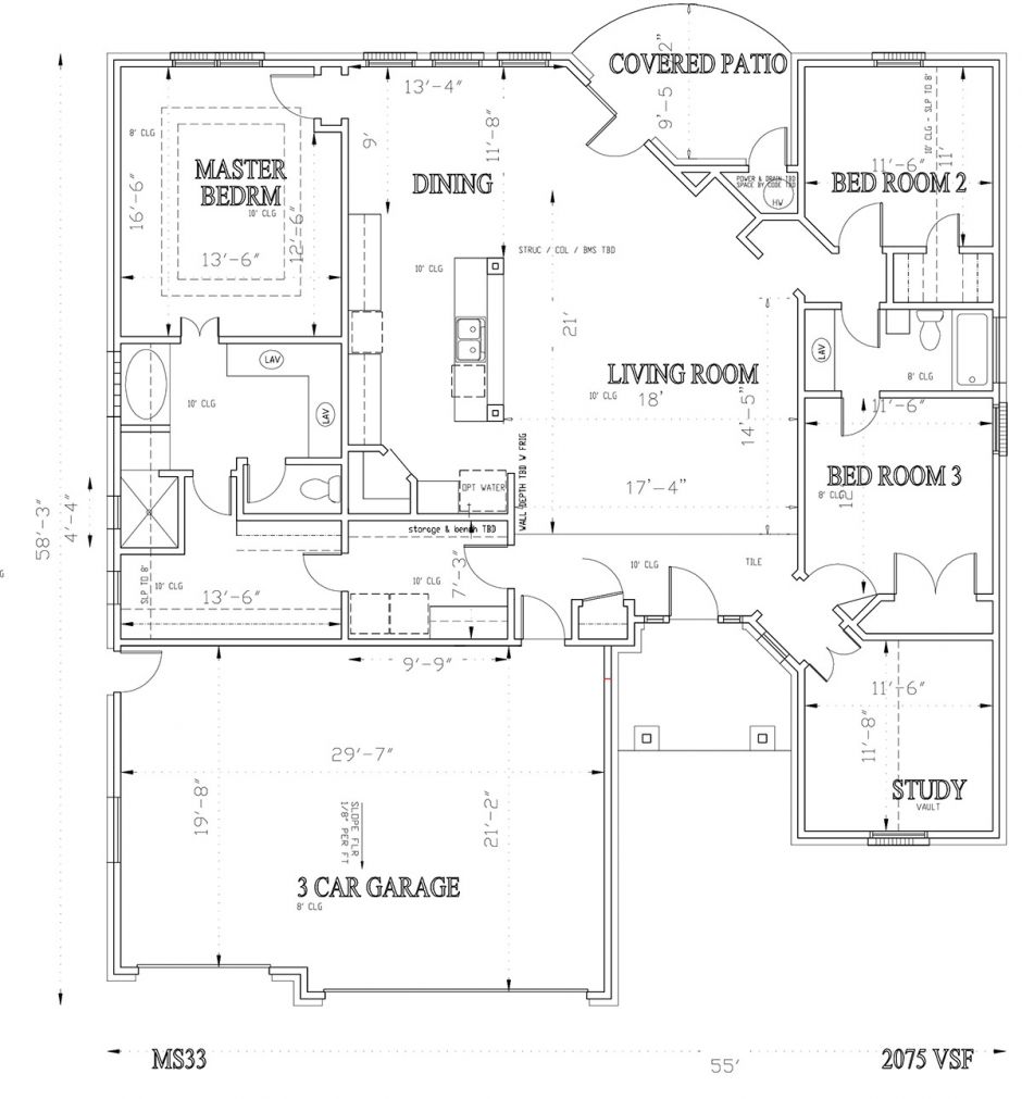
A large open plan with 3 beds, 2 baths, a study, 3 car garage and a covered patio.
3 Bedrooms
2 Bathrooms
3 Garages
Enquire About This Plan
View
3
2
Plan: MS-33
NEIGHBORHOOD: The Meadows at Riverbend